本文へスキップ

ニセコ周辺の不動産(土地・建物)のご相談は株式会社 ニセコカントリー不動産へ

電話でのお問い合わせは0136-56-2671

〒048-1312 北海道磯谷郡蘭越町字三和836番地8

物件詳細(中古物件NO B116)

北海道ニセコ町 ハンドカットのログハウスです。 土地面積818坪!!

ニセコ不動産(中古物件)画像1  ニセコ不動産(中古物件)画像2
南側から  東側から
ニセコ不動産(中古物件)画像3   ニセコ不動産(中古物件)画像4
南東側から 北西側から
 ニセコ不動産(中古物件)画像5 ニセコ不動産(中古物件)画像6 
2階 リヴィング 2階 大きな薪ストーブがあります
ニセコ不動産(中古物件)画像7 ニセコ不動産(中古物件)画像8
2階リヴィングからキッチン 2階洗面所
 所在地 虻田郡ニセコ町字曽我422番地4

ニセコ不動産(中古物件)航空写真

ニセコ不動産(中古物件)図面
 価 格 1億5000万円
 土 地
面 積
2706㎡(818坪)
 建 物
面 積
1F 76.00㎡
2F 76.00㎡
3F 73.46㎡
合計面積 225.46㎡(68.20坪)

 築年月 2004(H16)年9月新築
構 造  木・鉄筋コンクリート造亜鉛メッキ鋼板葺3階建
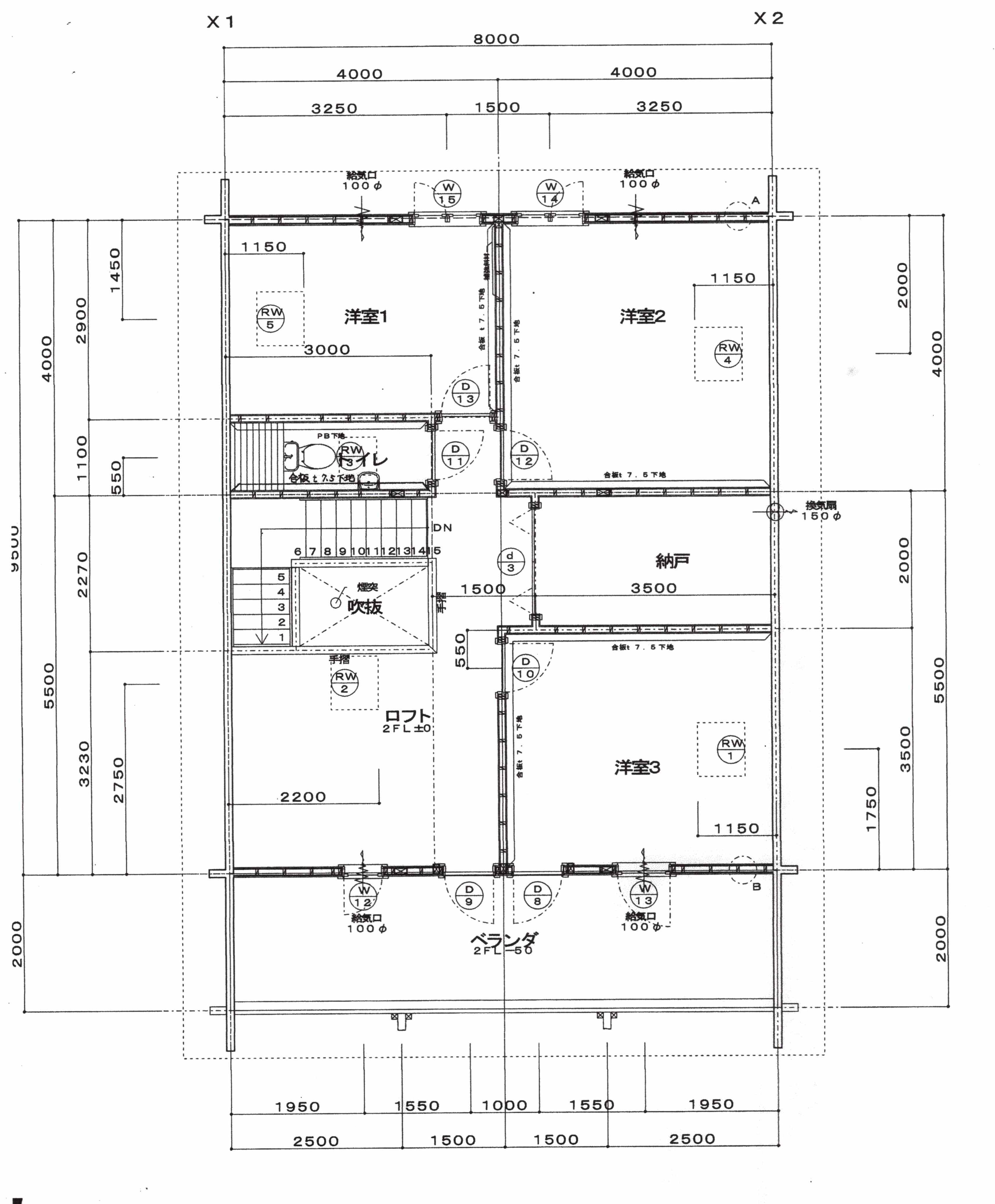
間取図 ニセコ不動産(中古物件)間取図1

2F  

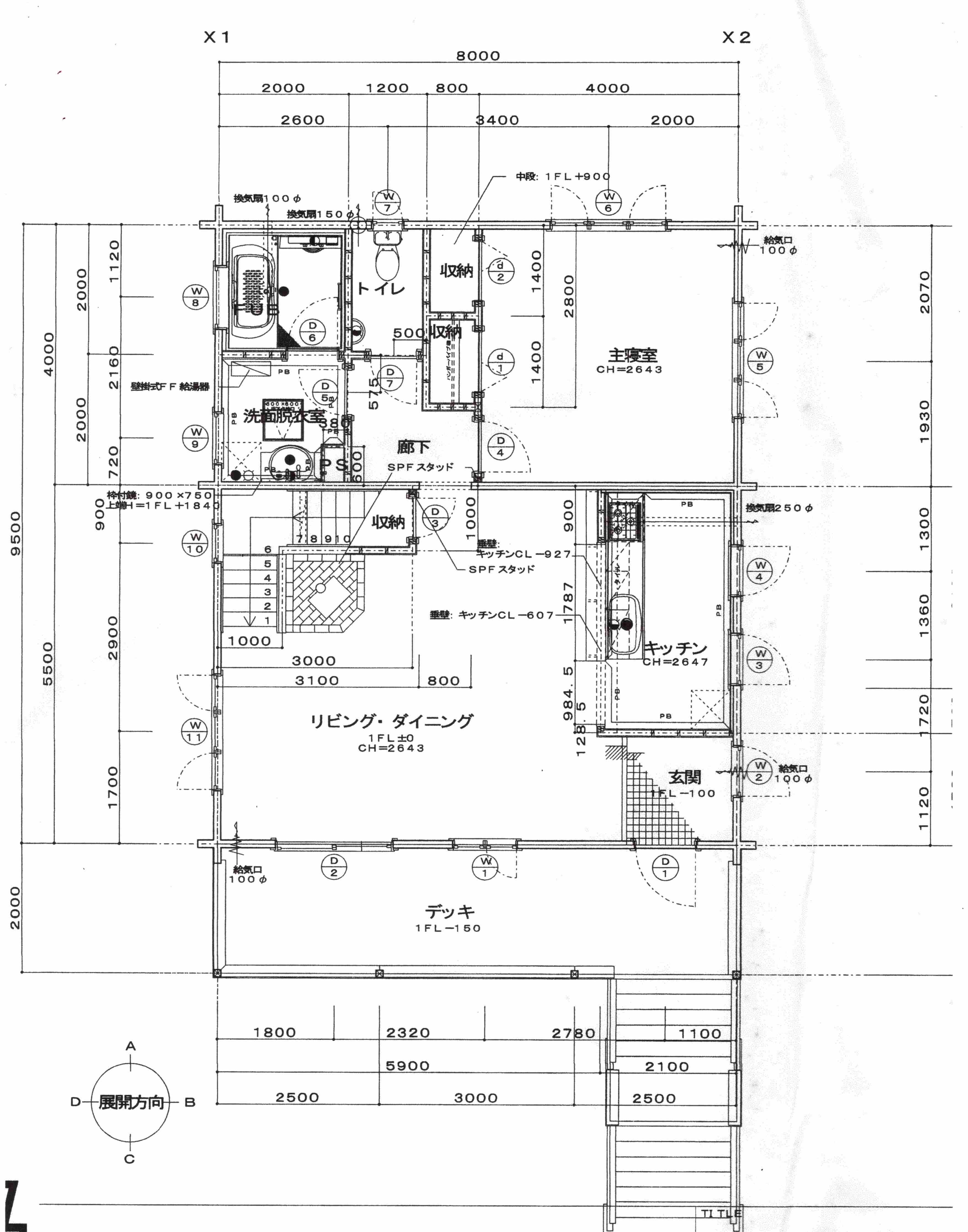
ニセコ不動産(中古物件)間取図2
          3F

現況と上記図面が異なる場合は現況を優先します
1Fは物置ですが、全て利用できます。
4LDK+ロフト+納戸+1階(物置)
 設 備 北海道電力、公営水道、LPG、NTT、
合併浄化槽
 交 通 JR函館本線「ニセコ駅」駅より4.7km
 接 道
状 況
西側既存道路 幅員7m(未舗装)
南側既存道路 幅員7m(未舗装)
西側の道路は町で除雪しています。
 特 徴 ニセコアンヌプリスキー場とニセコヴィレッジの
中間にあるハンドカットのログハウスです。

最近人気の別荘地「
ストーンサークル曽我
にあります。

土地面積が818坪あります!!

ニセコアンヌプリスキー場まで2.5kmです。
ニセコヴィレッジスキー場まで3.0kmです。

現在入居中に付き、ご見学希望の方は事前にご連絡ください。

固定資産税はR7年度、土地・建物合わせて
86,500円です。

仲 介